Double Girder Gantry Crane 20T – Heavy-Duty Stable Lifting Solution
The 20 ton Double Girder Gantry Crane is a sturdy and efficient lifting solution featuring double girder structure for enhanced stability and load-bearing capacity. This gantry crane delivers excellent performance, high safety, and superior operating efficiency. It is widely used in outdoor environments such as construction sites, logistics yards, prefabrication plants, and shipyards.
Double Girder Gantry Crane 20T Heavy-Duty
Technical Specifications and Performance Features
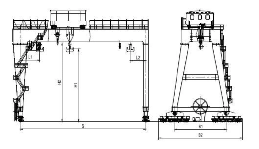
The Double Girder Gantry Crane provides 20 ton rated load with double girder design for heavy-duty applications. This system features working level A5-A7, span of 5-100 meters, and lifting height of 6-50 meters, ensuring robust performance while supporting customizable cantilever lengths.
The double girder configuration enables strong load-bearing capacity and smooth operation for large-tonnage material handling.

Mechanical Design Features
The gantry crane utilizes quality components engineered for heavy-duty performance:
- High-strength welded main beams and end beams
- Precision-machined wheel sets and guide rail systems
- Three-in-one motor reducer with inverter for operating mechanism
- Split lifting mechanism including motor, reducer, brake, and drum
- Optional electric hoist structure
The mechanical components ensure reliable heavy-duty lifting with stable double girder operation.
Operational Features
The double girder system provides:
- Efficient handling for improved work efficiency
- Rapid lifting of large-tonnage materials
- Smoother operation with low noise and minimal shaking
- Variable frequency drive for stable start/stop and accurate positioning
- Flexible layout in multi-scenario environments
The crane maintains consistent performance across heavy-duty conditions, ensuring efficient material flow.
Safety and Protection Systems
Standard safety features include:
- Limit protection devices
- Overload protection
- Windproof anchor systems
- Comprehensive accident risk reduction
Installation and System Integration
The gantry system offers flexible setup options:
- Trackless or track operation available
- Short installation cycle
- Compact overall design for space saving
- Compatible with various site layouts
Control System Compatibility
The double girder crane accepts:
- Wireless remote control
- Driver’s cab operation
- Ground control interfaces
- Integration with advanced electronic control systems
Technical Performance Data
Standard Specifications:
- Model: Double Girder Gantry Crane
- Rated load: 20 tons
- Working level: A5-A7
- Span: 5-100 meters
- Lifting height: 6-50 meters
- Cantilever length: Customizable
- Operating mechanism: Three-in-one motor reducer with inverter
- Lifting mechanism: Motor, reducer, brake, drum split structure (electric hoist optional)
- Operation mode: Wireless remote control or driver’s cab
- Product certification: ISO, CE
- Design standard: GB3811
Quality Manufacturing Standards
The crane follows established manufacturing protocols:
- High-strength welding technology
- Precision machining processes
- Comprehensive quality control testing
- Standardized key components
- Standard product warranty coverage
- Complete technical documentation provided
- Support for third-party inspection
Application Suitability
The double girder gantry crane serves various heavy-duty needs:
- Construction sites requiring stable lifting
- Logistics yards for efficient material handling
- Prefabrication plants with large assembly operations
- Shipyards demanding heavy-duty performance
- Outdoor factory areas with flexible span requirements
Technical Support and Configuration
For proper system operation:
- Professional installation recommended for heavy-duty applications
- Technical consultation available for customization
- Comprehensive user documentation provided
- Ongoing support for double girder configurations
Maintenance Requirements
The system requires:
- Regular structural inspections per specifications
- Periodic maintenance of key components
- Routine electrical and mechanical checks
- Convenient access for reduced downtime
Contact technical support for specific double girder gantry crane 20T configurations, customization guidance, and integration support for your heavy-duty lifting applications.






Reviews
There are no reviews yet.