20T Single Girder Semi Gantry Crane – Rail Mounted, A5 Duty
Efficient Rail-Mounted Lifting Solution for Industrial Needs
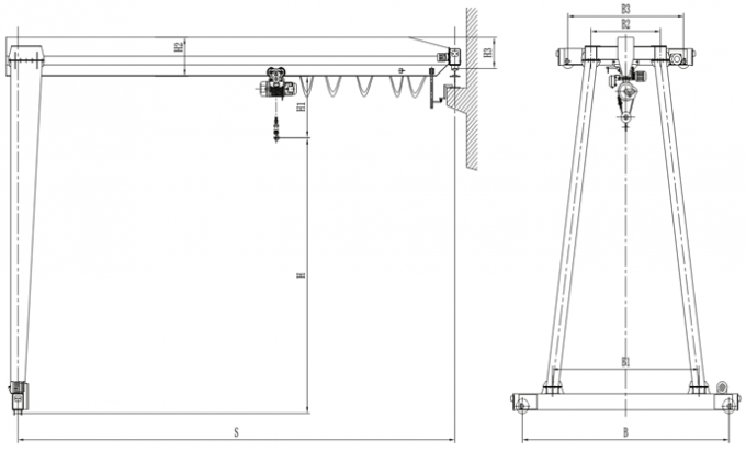
Discover the 20-ton single beam semi gantry crane, a rail-mounted system engineered for optimal performance in demanding environments. This crane integrates a solid bridge structure, reliable support legs, smooth traveling mechanisms, a functional trolley, and essential electrical systems, all complemented by a high-strength winch. The box-welded frame provides exceptional stability, with independent drives ensuring precise movement. Control options include wireless remotes or ground-based operations, powered via cables or sliding wires. Tailored to specific workplace demands, this equipment offers flexibility for various capacities to suit diverse material handling tasks.

Detailed Performance Specs for the 20T Semi Gantry System
-
Maximum Load Capacity: 20 tons
-
Operational Span: From 5 meters up to 35 meters
-
Elevation Reach: 6 to 9 meters, configurable as needed
-
Movement Velocity: 20 meters per minute for traveling, controlled remotely or from the cabin
-
Hoisting Rate: Between 0.6/6 and 0.7/7 meters per minute
-
Duty Classification: A5, ideal for intensive industrial operations
-
Electrical Input: Standard 380V three-phase 50Hz, adjustable to site specifications
These features make the rail-mounted semi gantry crane for workshops a dependable choice for enhancing productivity in constrained spaces.

Ideal Environmental Conditions for Reliable Operation
Operate this industrial 20-ton semi gantry lifting device effectively within:
-
Ambient Temperatures: -25°C to 50°C
-
Service Rating: A3 through A5, with options for customization in tough settings
Should your site present challenging conditions, provide details upfront for specialized adaptations to maintain peak efficiency and safety.
Versatile Uses in Manufacturing and Beyond
The 20T rail-mounted single girder crane shines in space-limited areas like production facilities, cement processing plants, and general manufacturing sites. Its one-legged configuration excels at:
-
Handling Materials: Streamlined loading and unloading in tight quarters
-
Production Support: Effortless transport of components during assembly
-
Extensive Coverage: Tracks along rails to service broad areas with ease
Perfect for sectors needing compact yet powerful overhead lifting solutions.
Benefits of Selecting This Robust Crane Model
Opt for the A5 duty semi gantry crane with 20-ton capacity for its blend of strength, adaptability, and user-friendly controls. With an expansive working area and bespoke design options, it stands out as an essential tool for efficient heavy lifting in customized industrial setups.
Built according to FEM Standards and compliant with EU CE Regulations, this crane ensures long-term reliability, safety, and efficiency in industrial lifting.









Reviews
There are no reviews yet.